Sign In

Royal College of Psychiatrists Meeting Room 1 – 4

21 Prescot Street, London, UK

No pricing items found.

Here at the Royal College of Psychiatrists, we offer a range of amazing events and meeting spaces, located near Tower Bridge in Central London.

You can book our prestigious auditorium, relaxed member’s lounge, intimate Antiquarian Library, breakout spaces, and range of dynamic meeting and seminar rooms to cater for events requirements of all sizes.

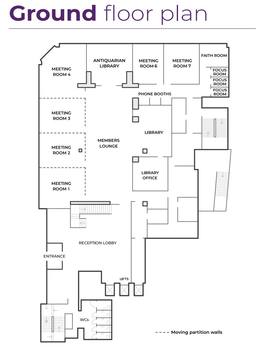
Meeting Room 1 – 4 is located on the ground floor, it’s a customisable venue space and it’s also a great choice for hosting fine dining events or drinks receptions. This space can also be used for face to face and hybrid meetings. Below is a breakdown of Meeting Room 1 – 4 capacity:

Seats – 48

Capacity: Boardroom – 48

21 Prescot Street is conveniently located between bustling Aldgate and the Tower of London, and it’s a short seven-minute walk from the picturesque St Katherine’s Docks which is home to many desirable shops, restaurants and cafes. Get in touch with us today if you’d like to book your future event or meeting here! 

Features

Wedding licence


Wedding licence - No

Capacity

Cabaret up to 120
Classroom up to 100
Theatre up to 250
Boardroom up to 48

Catering and drinks

In-house catering available - Yes
External catering allowed - No
BYO catering/food allowed - No
Refreshments offered for guests - Yes
Alcohol / liquor licence - Yes
BYO alcohol allowed - No

Facilities

Music & sound equipment

Play your own music - Yes

Age policy

Age restrictions at the venue - Yes

Parking

Free parking on premises - Yes
(Number of spaces available - 2)

Rules of the space

Rules of the space

Venue Hire

The RCPsych agrees to make space available to the hirer for the purposes of their event, but this does not constitute endorsement of the subject or content, nor does it in any way imply alignment with College policy, opinions or principles.

The College will not promote or advertise the event in any capacity.

The College’s name may be used only as the event’s location/address and must not be used in any way that suggests endorsement, affiliation or support.

The College does not give permission for its logo or any other form of College branding to be used in the promotion of the event, nor will the College co-brand in any capacity.

Hirers undertake to ensure that the College’s reputation and standing will not be compromised by any acts or omissions resulting from their event.

The College will not be held responsible or accountable for any criticism or negative publicity resulting from the event.

Popular for promoted and ticketed events - No
Cancellation policy

Refund Policy

All cancellations must be made via email.

The college will issue a full refund if notice of cancellation is received more than 28 calendar days prior to event.

Where cancellation notice was received up to 28 days prior to the start of the event, clients will be refunded the following rates:

Between 22 and 28 calendar days prior to the event, the client will be refunded 75% of the room hire and AV cost and 100% of the catering charges.

Between 15 and 21 calendar days prior to the event, the client will be refunded 50% of the room hire and AV cost and 100% of the catering charges.

Between 8 and 14 calendar days prior to the event, the client will be refunded 25% of the room hire and AV cost and 100% of the catering charges.

Between 0 and 7 calendar days prior to the event, the client will be refunded 0% of the room hire and AV cost and catering charges.

Location

Add Review

Leave a Reply

Verified Listing

Enquire Below

Share
Share
Share